de-DE
€1.450.000
Sie suchen eine repräsentative, vielseitig nutzbare Gewerbeimmobilie mit bester Verkehrsanbindung, moderner Ausstattung und nachhaltiger Energieversorgung? Dann sind Sie hier genau richtig.
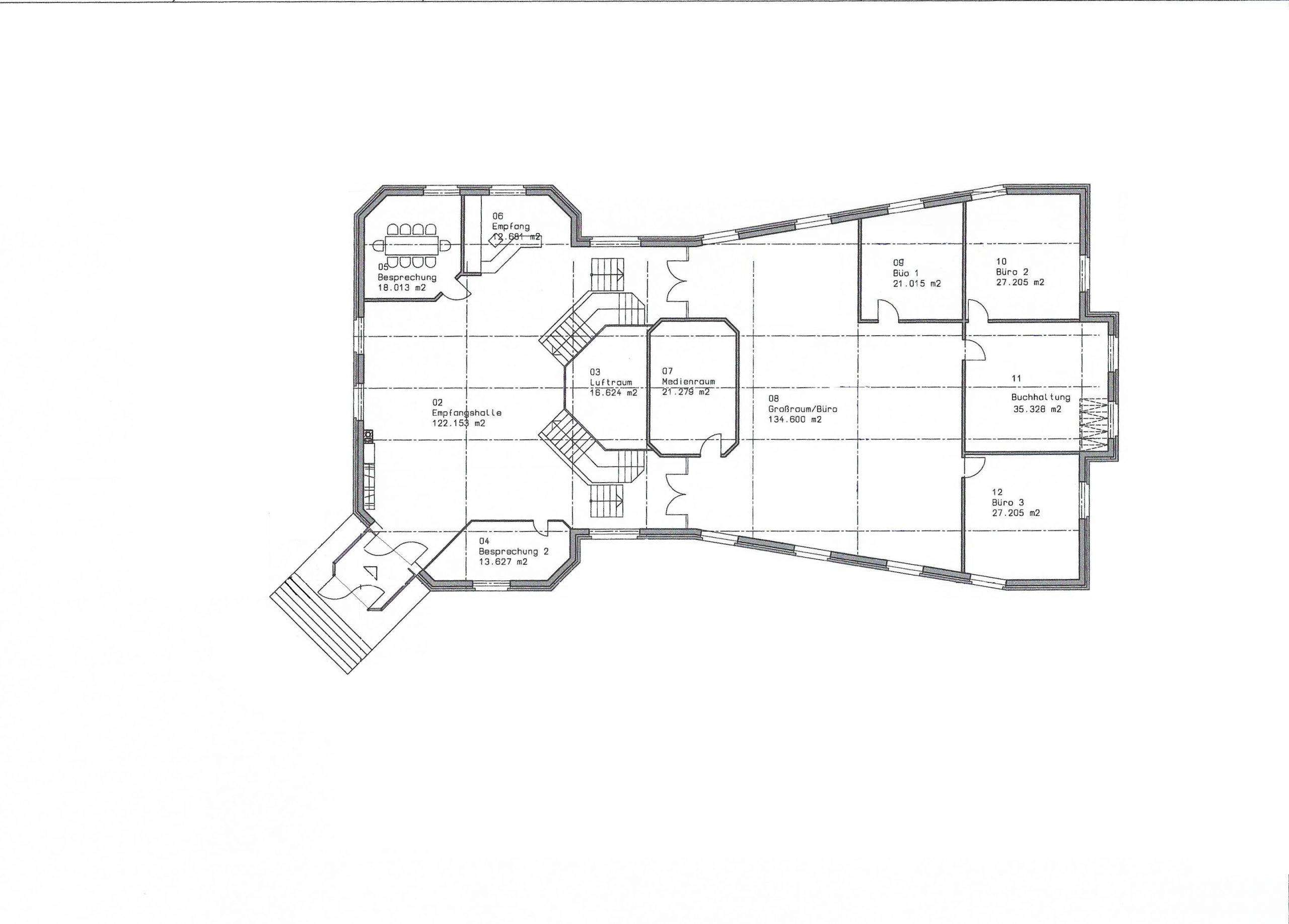
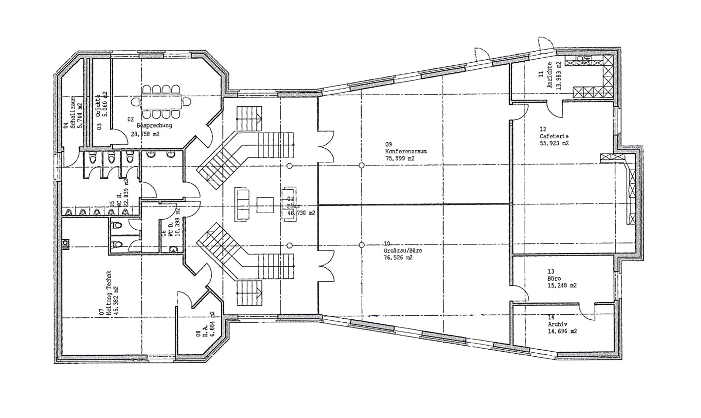
Diese Immobilie in Porta Westfalica, Zur Porta 15, bietet Ihnen auf einem großzügigen Grundstück von 3.271 m² eine durchdachte Kombination aus Büro-, Ausstellungs- und Sozialflächen – perfekt für Unternehmen mit Anspruch an Standort, Funktionalität und Zukunftsfähigkeit.
✅ Ca. 1.043 m² Nutzfläche in massiver Bauweise
✅ Photovoltaikanlage (29 kWp) mit Batteriespeicher (Inbetriebnahme 2021)
✅ Gaszentralheizung (2021, Vaillant ecoCraft)
✅ Ca. 30 befestigte Stellplätze direkt auf dem Grundstück
✅ Ladeboxen für E-Fahrzeuge vorhanden – ideal für Ihre Flotte oder Kunden
✅ Bauvoranfrage zur Erweiterung positiv beschieden
✅ Vollständig eingefriedetes Grundstück mit automatischem Rolltor
✅ Repräsentativer Eingangsbereich mit Showroom-Charakter
✅ Sozialräume und moderne Personalküche im Untergeschoss
Die Immobilie befindet sich im etablierten Gewerbegebiet von Porta Westfalica – in direkter Nachbarschaft zur Grohe AG und nur wenige Kilometer entfernt von Minden, einem der wirtschaftlichen Zentren Ostwestfalens.
Hier sind namhafte Unternehmen wie EDEKA Minden-Hannover, Melitta, WAGO und HARTING ansässig. Der Binnenhafen Minden ermöglicht trimodalen Güterumschlag über Wasser, Schiene und Straße und bietet insbesondere für logistiknahe Betriebe enorme Vorteile.
Schnelle Erreichbarkeit:
L714 in unmittelbarer Nähe
Nur wenige Fahrminuten zur A2 (Dortmund–Hannover)
Anschluss an den ÖPNV und Bahnhof Porta Westfalica
Gute Anbindung an die Städte Bielefeld, Herford, Bad Oeynhausen, Hannover
Dieses Objekt ist flexibel gestaltbar und eignet sich u. a. für:
Dienstleistungsbetriebe mit Kundenverkehr
Architekturbüros, Planer, Agenturen
Showroom- und Vertriebsnutzung (z. B. Küchen, Bäder, Einrichtung)
Handwerksbetriebe mit Büro- und Beratungsbedarf
Verwaltungssitze oder Schulungseinrichtungen
Kapitalanleger mit Fokus auf Gewerbevermietung